TOPFSCHMUTZFÄNGER AUS PVC U, PP UND PVDF

DN 65 - DN 300





Für den Schutz von Armaturen, Sensoren und Pumpen gegen Verschmutzung, werden in der Chemie- und Verfahrenstechnik beim Einsatz von Kunststoffrohrleitungen, insbesondere bei großen Abmessungen, Topfschmutzfänger aus PVC, PP und PVDF empfohlen. Für den Anlagenbetreiber stellen diese Bauarten an Schmutzfängern eine lange Lebensdauer, hohe Standzeit eine Betriebssicherheit der Komponenten sicher. Für höhere Anforderungen bietet die Kwerk GmbH auch GFK- verstärkte Versionen im Markt an.

Topfschmutzfänger werden immer dort eingesetzt, wo aufgrund der baulichen Gegebenheiten eine Siebentnahme nach unten nicht möglich ist. Die Siebentnahme nach unten birgt beim Einsatz für das Bedienpersonal auch ein erhöhtes Gefährdungspotential und erfordert erhöhte Sicherheitsvorkehrungen für das Personal.
Die Kwerk GmbH fertigt in der Werkstatt ein Standardprogramm an Topfschmutzfängern, darüber hinaus fertigen wir nach Kundenwunsch und Einbausituationen entsprechende Topfschmutzfänger an.

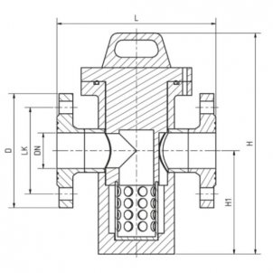
Die Schmutzfänger werden in der Flanschbauweise nach Festflansch nach DIN EN 1092-1, DIN 2501 / PN 10 oder ANSI gefertigt. Als Standard Maschenweite steht die Perforation 2,0 mm alternative 0,5 mm + 1 mm zur Verfügung. Andere Perforationen sind auf Anfrage möglich.




 

 
 
Newnnweite Maße DIN EN 1092-1
DIN 2501
KV Wert
delta p 1 bar
d
mm
DN
mm
Zoll L
mm
H1
mm
H
mm
LK
mm
D
mm
n x d2
mm

l/min
75 65 21/2" 255 250 450 145 185 4 x d18 500
90 80 3" 270 270 480 160 200 8 x d18 1.000
110 100 4" 350 285 545 180 220 8 x d18 1.600
140 125 5" 400 365 620 210 250 8 x d18 3.000
160 150 6" 450 410 690 240 285 8 x d18 4.500
225 200 8" 520 555 875 295 340 8 x d18 10.000
280 250 10" 630 570 920 350 395 12 x d18 auf Anfrage
315 300 12" 810 730 1125 400 445 12 x d18 auf Anfrage
 




DRUCK - TEMPERATUR - DIAGRAMM








ERSATZTEILE FÜR TOPFSCHMUTZFÄNGER

Wir führen die Ersatzteile direkt ab Lager lieferbar


Nr. Bezeichnung Werkstoff  
1 Gehäuse PVC U, PP, PVDF  
2 Siebhalter / Deckel PVC U, PP, PVDF  
3 Siebkorb PVC U, PP, PVDF  
4 Sieb Maschenweite 2,0 mm ETFE  
5 O-Ring EPDM, FPM  
6 Schraube 1.4301  
7 Scheibe 1.4301  
8 Mutter 1.4301  
 




LIEFERPROGRAMM TOPFSCHMUTZFÄNGER

DN 65 - DN 300 in PVC U, PP und PVDF




Werkstoff PVC U grau

Maße / Dimensionen

beidseitig Festflansch
DIN EN 1092-1, DIN 2501 - PN 10
O-Ringe EPDM
beidseitig Festflansch
DIN EN 1092-1, DIN 2501 - PN 10
O-Ringe FPM
d
mm
DN Zoll PN
bar
Artikel Nummer Gewicht
kg
Euro / Stück Artikel Nummer Gewicht Euo / Stück
75 65 21/2" 2 481790 7,80 Artikel im Webshop 481795 7,80 Artikel im Webshop
90 80 3" 2 481791 10,00 Artikel im Webshop 481796 10,00 Artikel im Webshop
110 100 4" 2 481792 12,5 Artikel im Webshop 481797 12,50 Artikel im Webshop
140 125 5" 2 481793 20,00 Artikel im Webshop 481798 20,00 Artikel im Webshop
160 150 6" 2 481794 26,50 Artikel im Webshop 481799 26,50 Artikel im Webshop
Werkstoff PP
75 65 21/2" 6 481800 5,00 Artikel im Webshop 481807 5,00 Artikel im Webshop
90 80 3" 6 481801 6,50 Artikel im Webshop 481808 6,50 Artikel im Webshop
110 100 4" 6 481802 8,00 Artikel im Webshop 481809 8,00 Artikel im Webshop
140 125 5" 6 481803 13,00 Artikel im Webshop 481810 13,00 Artikel im Webshop
160 150 6" 4 481804 17,00 Artikel im Webshop 481811 17,00 Artikel im Webshop
225 200 8" 4 481805 24,00 Artikel im Webshop 481812 24,00 Artikel im Webshop
280 250 10" 4 481806 30,00 Artikel im Webshop 481813 30,00 Artikel im Webshop
Werkstoff PP bis DN 300 auf Anfrage möglich
Werkstoff PVDF
75 65 21/2" 10 481814 10,00 Artikel im Webshop 481818 10,00 Artikel im Webshop
90 80 3" 10 481815 13,00 Artikel im Webshop 481819 13,00 Artikel im Webshop
110 100 4" 10 481816 16,00 Artikel im Webshop 481820 16,00 Artikel im Webshop
140 125 5" 10 481817 25,00 Artikel im Webshop 481821 25,00 Artikel im Webshop
Werkstoff PVDF bis DN 200 auf Anfrage möglich

 





Ihre Wünsche, unsere Lösungen - Ein umfangreiches Lieferprogramm nach Maß.



Kunststoffrohrsysteme


Rohrsysteme aus Kunststoff im Überblick
Technische Informationen ABS Rohrsysteme
Technische Informationen PVC  U Rohrsysteme
Technische Informationen PVC  U Transparent Rohrsysteme
Technische Informationen PVC  C Rohrsysteme
Technische Informationen PP Rohrsysteme
Technische Informationen PP-R Rohrsysteme
Technische Informationen PE Rohrsysteme
Technische Informationen PVDF Rohrsysteme

Chemiedur


Technische Informationen UP-GF (GFK) Rohrsysteme
UP-GF (GFK) Rohre
UP-GF (GFK) Formteile und Verbindungen
UP-GF-PP (GFK) Formteile und Verbindungen
UP-GF (GFK) Klebebunde
UP-GF (GFK) Losflansche
PP/GFK Schmutzfänger DN 200 - DN 500
GFK/CSS  Schmutzfänger DN 200 - DN 500
PP/GFK  Schrägsitzschmutzfänger DN 200 - DN 400
GFK und PP/GFK Mannlochdeckel DN 500 - DN 800


Kunststoffrohre


Rohrzuschnitssrechner
Sägehinweise Kunststoffrohre
Kunststoffrohr - Restebörse
Normung - Kunststoffrohre und Formteile
PVC U Rohrabweichungen
Druckverlust PVCU, PVCC und ABS Rohrsysteme
Unterschied Rp, R und G Gewinde
Schraubenlängen für Flanschverbindungen
Dichtungen: PTFE, NBR, FKM, EPDM

Kunststoffarmaturen


PVC U Transparent Kugelhahn
Membranventile
Blockventile
Absperrklappen
Nadelventile aus Kunststoff



 

Kunststoffarmaturen nach ATEX


ATEX-Leitlinien allgemein
Neue EU Richtlinie 2014/34/EU
Kunststoffarmaturen in Ex-Zonen
Schmutzfänger PP-EL DN 15 - DN 50
Rückschlagventil PP-EL DN 15 - DN 50
Schrägsitzventil PP-EL DN 15 - DN 50

Kleben von Kunststoffrohren


Klebeanleitung
Klebeanleitung per Video

Kunststoffschweißen


Hinweise zum Extrusionsschweissen


Gitterroste / Tragroste


GFK Gitterroste
Gitterroste PP -el elektrisch Leitfähig
Profiltragroste PP -el elektrisch Leitfähig


Lüftungsformteile


Lüftungstechnik
Revisionsdeckel für Lüftungskanäle
Luftstromüberwachung


Chemieschlauch


PVC Transparentschlauch mit Textileinlage


Industrie- und Chemiebehälter


Dosierbehälter-Konfigurator
Dosierbehälter  und Überbehälter 35 – 1000 Liter
Salzlösebehälter 60 -5000 Liter
Lagerbehälter & Bottiche
Lagerbehälter für Wasser
Sicherheits- und Auffangwannen
Lieferprogramm Industriebehälter
Dosierbehälter mit Rührwerk
Rührwerk für Dosierbehälter
Dosierbehälter mit Anbauvarianten
Dosierbehälter aus Plattenmaterial
Chemiebehälter - Kundenlösungen
Dosierbehälter mit Füllstandsanzeigen
GFK Behälter für den schweren Chemieeinsatz



 

IBC TANK / CONTAINER


IBC Schraubdeckel DN 150/DN 200
IBC Adapter aus PE
IBC Adapter aus PP
MULTI FLEX BLOCK für IBC Bulk Container
Sauglanze für MULTI FLEX BLOCK und IBC Bulk Container
Heizhaube für IBC Bulk Container

Anwendungsbeispiele
MULTI FLEX BLOCK


Legionellen in Rückkühlwerken


Anbauteile für den Behälterbau


Säuredunstscheider
CO2 - Absorber
Fallbeispiel CO2 - Absorber
Mannlochdeckel
Revisionsstutzen
Blockflansche
Klöpperboden aus PP-CPK, PE-SK, PVDF-geätzt, PVC U und PVC-C


Filtergehäuse und Filterkerzen


PENTEK 3G Slime Line Gehäuse
PENTEK 3G Standard Filtergehäuse
PENTEK Big Blue Filtergehäuse
PENTEK PP Hochtemperatur Filtergehäuse
PENTEK PP Natur Filtergehäuse
PENTEK Filterbeutel für Big Blue Filtergehäuse
PENTEK Filtereinsätze für Oberflächenfiltration
PENTEK Filtereinsätze für Tiefenfiltration
PENTEK Filtereinsätze mit Aktivkohle
CINTROPUR Filtersysteme
CINTROPUR Wasserfilter
Enthärtungsanlage KAWK
Heizungswasser Umkehrosmose INDUWA


Flansch-Konfigurator


Blindflansch-Losflansch-Rechteckflansch

Chemische Beständigkeit


Beständigkeitsliste für Rohrsystemen aus Kunststoff

Kunststoffapparatebau


Tropfenabscheider aus PVC U, PP, PPs, PE und Verbundwerkstoffen

 

Kunststoff-Drehteile


Einlegteile
Einschraubteile
Gewindefittings
Verschraubungen

Kunststoff-Frästeile


Los- und Blindflansche aus Platten


Statische Mischer


Statische Mischer aus Kunststoff


Kompensatoren


Kompensatoren für Kunststoffrohrsysteme


Schmutzfänger


Einzel- und Doppelschmutzfänger
Topfschmutzfänger DN 300
Schrägsitzschmutzfänger DN 500


Durchflussmesser


Schwebekörperdurchflussmesser
Konfigurator für Durchflussmesser
Messwertgeber für Schwebekörperdurchflussmesser
Nebenstrom - Durchflussmesser


Filterpressen


Laborfilterpresse


Spritzgussteile


Schaber aus PE für Filterpressen


Kwerk Praxis Blog


Hier bloggt das Kwerk Team aus der Praxis


Westerwald - Spezial


Westerwälder Säurekitt


Kwerk GmbH International


Unsere Webseite in Englisch


Partnerschaft auf höchstem Niveau


 
         
 
 
 
       
 
 
         
 
VIDEO
ONLINE-TOOLS
ANGEBOT ANFORDERN
PROJEKT-ANFRAGE STARTEN